
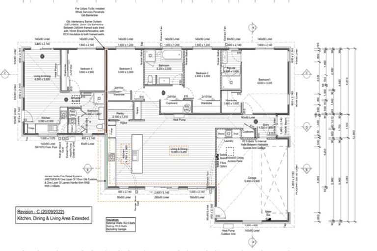
21 Merlin Terrace, Rolleston, 7615 is a Residential property built in 2023 with 4 bedrooms, 3 bathrooms and 2 parking spaces. The property is estimated to be valued in the range of $800,000 to $900,000.
The property last sold on 23 February 2026 for an unknown price. It was sold by Property Brokers Rolleston, (Licensed: Reaa 2008), and took 25 days to sell. On 1 September 2024, 21 Merlin Terrace, Rolleston, 7615 had a Rating Valuation with a Capital Value of $840,000, Land Value of $350,000 and Improvement Value of $490,000.
| Date | Type | Price | Agent/Agency |
|---|---|---|---|
| 23 Feb 2026 | $0 | Pending Settlement Advice | |
| 31 Oct 2025 | ASKING PRICE | $915,000 | Jeanneane Rae of Property Brokers Rolleston, (Licensed: Reaa 2008) |
| 14 Nov 2024 | BY NEGOTIATION | Price Not Disclosed | |
| 1 Jan 1930 | SOLD | $0 |
Lot 447 Deposited Plan 566745
There are no similar properties in the area that are listed for sale or recently sold.