
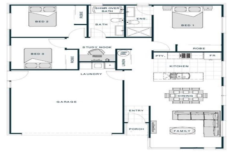
13 Kennington Drive, Rolleston, 7615 is a Residential property built in 2019 with 3 bedrooms, 2 bathrooms and 2 parking spaces. The property is estimated to be valued in the range of $700,000 to $750,000.
It is unknown when the property was last sold or how much it was sold for. On 1 September 2024, 13 Kennington Drive, Rolleston, 7615 had a Rating Valuation with a Capital Value of $690,000, Land Value of $315,000 and Improvement Value of $375,000.
| Date | Type | Price | Agent/Agency |
|---|---|---|---|
| 14 Jul 2021 | Rented | $500 | Caitlin Blanchfield of Venture Property Management Ltd |
| 7 May 2019 | ASKING PRICE | $505,000 | Kaye Isaacs of Harcourts Rolleston, (Licensed: Reaa 2008) |
Lot 17 Deposited Plan 529123
There are no similar properties in the area that are listed for sale or recently sold.