
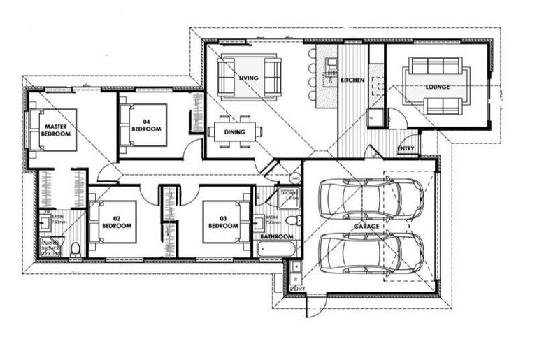
10 Chilton Drive, Rolleston, 7615 is a Residential property built in 2019 with 4 bedrooms, 2 bathrooms and 2 parking spaces. The property is estimated to be valued in the range of $750,000 to $800,000.
It is unknown when the property was last sold or how much it was sold for. On 1 September 2024, 10 Chilton Drive, Rolleston, 7615 had a Rating Valuation with a Capital Value of $740,000, Land Value of $325,000 and Improvement Value of $415,000.
| Date | Type | Price | Agent/Agency |
|---|---|---|---|
| 13 Sep 2024 | Rented | $640 | Jeremie King of Rent Right Property Management Ltd |
| 25 Jul 2023 | Rented | $610 | Jeremie King of Rent Right Property Management Ltd |
| 20 May 2020 | Rented | $525 | Jeremie King of Rent Right Property Management Ltd |
| 4 May 2019 | Rented | $525 | Barry Thompson of Rent Right Property Management Ltd |
Lot 42 Deposited Plan 529123
There are no similar properties in the area that are listed for sale or recently sold.