
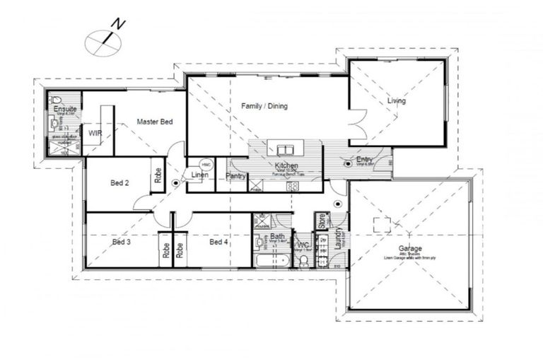
58 Riverstone Drive, Rolleston, 7614 is a Residential property built in 2018 with 4 bedrooms, 2 bathrooms and 2 parking spaces. The property is estimated to be valued in the range of $800,000 to $900,000.
It is unknown when the property was last sold or how much it was sold for. On 1 September 2024, 58 Riverstone Drive, Rolleston, 7614 had a Rating Valuation with a Capital Value of $900,000, Land Value of $360,000 and Improvement Value of $540,000.
| Date | Type | Price | Agent/Agency |
|---|---|---|---|
| 30 Mar 2022 | BY NEGOTIATION | Price Not Disclosed | Jo Barrett of Eclipse Realty Ltd |
| 29 Apr 2020 | ENQUIRIES OVER | $590,000 | Eben Olivier of Ray White Next Step Realty Ltd |
| 14 Oct 2019 | ASKING PRICE | $625,000 | Eben Olivier of Next Step Realty Ltd (Licensed: Reaa 2008) - Ray White, Barrington |
Lot 17 Deposited Plan 510089
There are no similar properties in the area that are listed for sale or recently sold.