
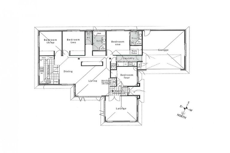
5 Durrell Way, Rolleston, 7614 is a Residential property built in 2012 with 4 bedrooms, 2 bathrooms and 1 parking space. The property is estimated to be valued in the range of $750,000 to $800,000.
It is unknown when the property was last sold or how much it was sold for. On 1 September 2024, 5 Durrell Way, Rolleston, 7614 had a Rating Valuation with a Capital Value of $790,000, Land Value of $370,000 and Improvement Value of $420,000.
| Date | Type | Price | Agent/Agency |
|---|---|---|---|
| 4 Aug 2020 | ENQUIRIES OVER | $579,000 | Sarah Yeates of Property Brokers Rolleston, (Licensed: Reaa 2008) |
| 22 Nov 2007 | ASKING PRICE | $365,000 | Emma George of The Professionals Kennard Real Estate |
| 5 Aug 2006 | DEADLINE PRIVATE TREATY | Price Not Disclosed | Terry Naish of Nationwide Ilam Real Estate Ltd |
| 18 Aug 2005 | DEADLINE PRIVATE TREATY | Price Not Disclosed | Kerry Luke of Remax Leaders Christchurch Real Estate |
Lot 9 Deposited Plan 73328
There are no similar properties in the area that are listed for sale or recently sold.