
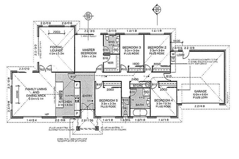
43 Masefield Drive, Rolleston, 7614 is a Residential property built in 2018 with 5 bedrooms, 2 bathrooms and 2 parking spaces. The property is estimated to be valued in the range of $900,000 to $1,000,000.
The property last sold on 31 October 2025 for an unknown price. It was sold by Total Realty South Island - Canterbury, (Licensed: Reaa 2008), and took 50 days to sell. On 1 September 2024, 43 Masefield Drive, Rolleston, 7614 had a Rating Valuation with a Capital Value of $910,000, Land Value of $390,000 and Improvement Value of $520,000.
| Date | Type | Price | Agent/Agency |
|---|---|---|---|
| 31 Oct 2025 | $0 | Pending Settlement Advice | |
| 12 Sep 2025 | ASKING PRICE | $910,000 | Steph Kimber of Total Realty South Island - Canterbury, (Licensed: Reaa 2008) |
| 7 Nov 2017 | DEADLINE PRIVATE TREATY | Price Not Disclosed | Katie Harrison of Harcourts Rolleston |
Lot 10 Deposited Plan 479510
There are no similar properties in the area that are listed for sale or recently sold.