
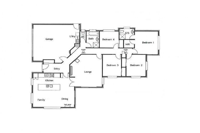
29 George Street, Rolleston, 7614 is a Residential property built in 2008 with 4 bedrooms, 2 bathrooms and 2 parking spaces. The property is estimated to be valued in the range of $800,000 to $900,000.
It is unknown when the property was last sold or how much it was sold for. On 1 September 2024, 29 George Street, Rolleston, 7614 had a Rating Valuation with a Capital Value of $820,000, Land Value of $400,000 and Improvement Value of $420,000.
| Date | Type | Price | Agent/Agency |
|---|---|---|---|
| 27 May 2020 | ENQUIRIES OVER | $559,000 | Sarah Yeates of Property Brokers Rolleston, (Licensed: Reaa 2008) |
| 23 May 2013 | ASKING PRICE | $499,000 | Brendan Shefford of Ray White Rolleston (AJ McPherson & Associates LT |
Lot 4 Deposited Plan 398707
There are no similar properties in the area that are listed for sale or recently sold.