
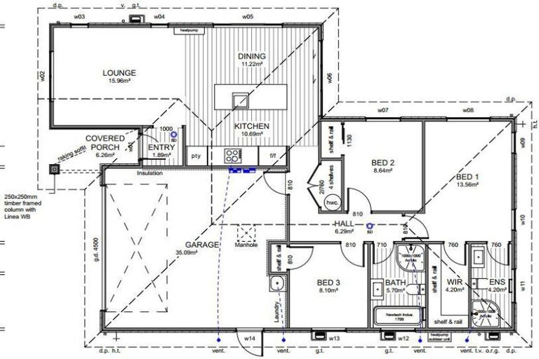
24 Muldowney Drive, Rolleston, 7614 is a Residential property built in 2024 with 3 bedrooms, 2 bathrooms and 2 parking spaces. The property is estimated to be valued in the range of $700,000 to $750,000.
It is unknown when the property was last sold or how much it was sold for. On 1 September 2024, 24 Muldowney Drive, Rolleston, 7614 had a Rating Valuation with a Capital Value of $720,000, Land Value of $335,000 and Improvement Value of $385,000.
| Date | Type | Price | Agent/Agency |
|---|---|---|---|
| 4 Dec 2023 | ASKING PRICE | $749,900 | Andrew Wilson of The Property Factory Limited |
Lot 522 Deposited Plan 581496
There are no similar properties in the area that are listed for sale or recently sold.