1 of 7Oct 25
Loading...

24 Mondo Drive Rolleston, 7614


24 Mondo Drive , Rolleston, 7614
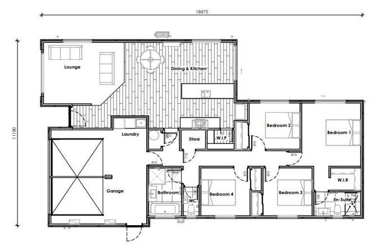
bed4
bathroom2
car-
land297 m2
floor-
Property Type
Residential
Year Built
-
Last Sale information not available

Estimated Value Range  


An estimate of value is not currently available for this property. There could be insufficient property information or recent sales data. The property could be out of scope (e.g. non-residential, highly unique, rural) or the estimate cannot be determined with high enough confidence.

About 24 Mondo Drive, Rolleston, 7614

24 Mondo Drive, Rolleston, 7614 is a Residential property with 4 bedrooms, 2 bathrooms and 0 parking spaces. Due to insufficient data, the value of the property cannot be estimated.

It is unknown when the property was last sold or how much it was sold for. On 1 September 2024, 24 Mondo Drive, Rolleston, 7614 had a Rating Valuation with a Capital Value of $290,000 and Land Value of $290,000.

Property History

There is no history for this property.
Present Day
Unknown
Property Built

Commute Calculator

-
-
-
-

Rating Valuation

Capital Value
$290,000
Land Value
$290,000
Improvement Value
-
Legal Description(s)

Lot 266 Deposited Plan 616748

Valuation Date
01-09-2024
Valuation Reference
24055/38401

Additional Information

Roof Construction
-
Zone
Rural Industry Zone A, 1A
Units of Use
1
Wall Construction
-
Maori Land
No
Territorial Authority
Selwyn District
Land Use
-

Suburb Insights

Comparable Properties

There are no similar properties in the area that are listed for sale or recently sold.