
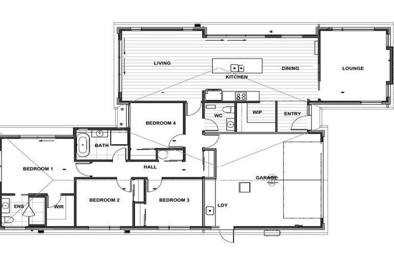
16 Kite Street, Rolleston, 7614 is a Residential property built in 2025 with 4 bedrooms, 2 bathrooms and 2 parking spaces. The property is estimated to be valued in the range of $800,000 to $900,000.
The property last sold on 18 November 2025 for an unknown price. It was sold by Freedom Built, and took 48 days to sell. On 1 September 2024, 16 Kite Street, Rolleston, 7614 had a Rating Valuation with a Capital Value of $850,000, Land Value of $360,000 and Improvement Value of $490,000.
| Date | Type | Price | Agent/Agency |
|---|---|---|---|
| 18 Nov 2025 | $0 | Pending Settlement Advice | |
| 2 Oct 2025 | ASKING PRICE | $929,500 | Emily Ives of Freedom Built |
| 15 Jun 2025 | ASKING PRICE | $919,500 | Emily Ives of Freedom Built |
| 6 Mar 2025 | SOLD | $300,000 |
Lot 167 Deposited Plan 601461
There are no similar properties in the area that are listed for sale or recently sold.