
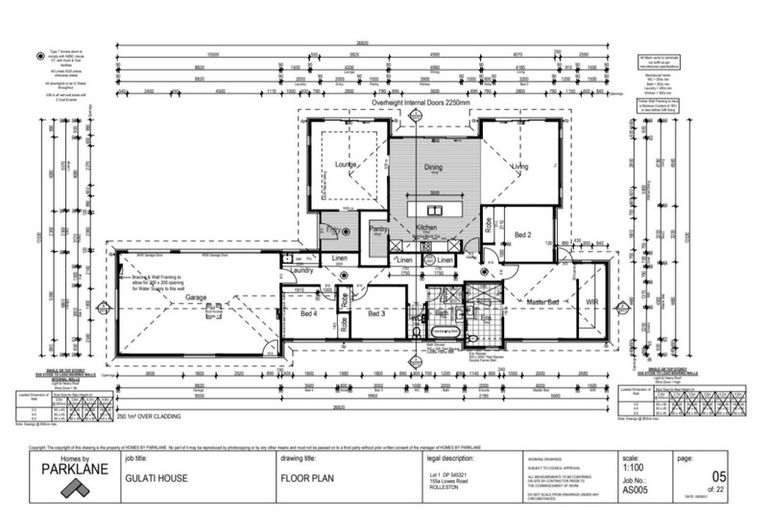
155a Lowes Road, Rolleston, 7614 is a Residential property built in 2022 with 4 bedrooms, 2 bathrooms and 3 parking spaces. The property is estimated to be valued in the range of $1,000,000 to $1,100,000.
It is unknown when the property was last sold or how much it was sold for. On 1 September 2024, 155a Lowes Road, Rolleston, 7614 had a Rating Valuation with a Capital Value of $1,020,000, Land Value of $410,000 and Improvement Value of $610,000.
| Date | Type | Price | Agent/Agency |
|---|---|---|---|
| 19 May 2022 | BY NEGOTIATION | Price Not Disclosed | Stephan Knowler Areinz of Property Brokers Leeston |
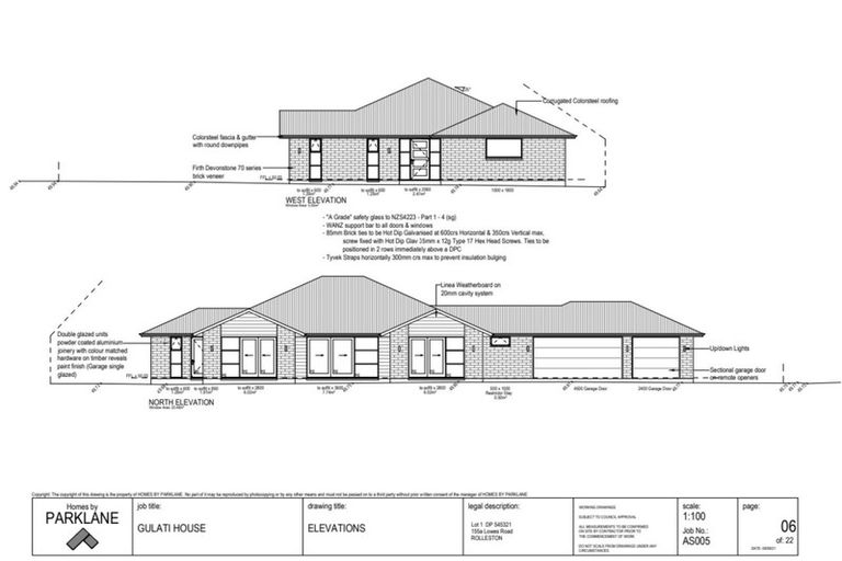
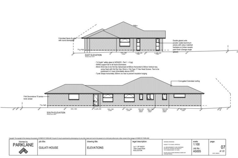
Lot 1 Deposited Plan 545321
There are no similar properties in the area that are listed for sale or recently sold.