
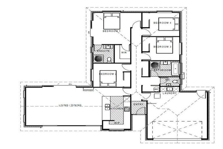
134 Dunns Crossing Road, Rolleston, 7614 is a Residential property built in 2024 with 4 bedrooms, 2 bathrooms and 2 parking spaces. The property is estimated to be valued in the range of $800,000 to $900,000.
It is unknown when the property was last sold or how much it was sold for. On 1 September 2024, 134 Dunns Crossing Road, Rolleston, 7614 had a Rating Valuation with a Capital Value of $790,000, Land Value of $360,000 and Improvement Value of $430,000.
| Date | Type | Price | Agent/Agency |
|---|---|---|---|
| 10 Jan 2024 | ENQUIRIES OVER | $799,500 | Freedom Built of Freedom Built |
Lot 188 Deposited Plan 585683
There are no similar properties in the area that are listed for sale or recently sold.