
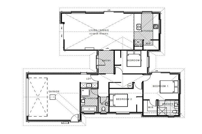
132b Dunns Crossing Road, Rolleston, 7614 is a Residential property built in 2024 with 3 bedrooms, 2 bathrooms and 2 parking spaces. The property is estimated to be valued in the range of $750,000 to $800,000.
It is unknown when the property was last sold or how much it was sold for. On 1 September 2024, 132b Dunns Crossing Road, Rolleston, 7614 had a Rating Valuation with a Capital Value of $770,000, Land Value of $350,000 and Improvement Value of $420,000.
| Date | Type | Price | Agent/Agency |
|---|---|---|---|
| 15 Mar 2024 | ASKING PRICE | $799,000 | Jaden Ransley of Harcourts Four Seasons Prebbleton, (Licensed: Reaa 2008) |
| 13 Nov 2023 | ASKING PRICE | $829,000 | Freedom Built of Freedom Built |
Lot 191 Deposited Plan 585683
There are no similar properties in the area that are listed for sale or recently sold.