
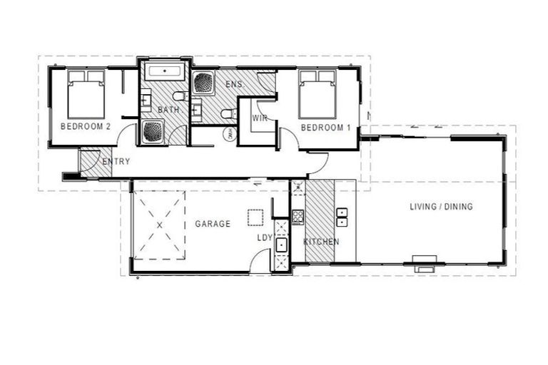
13 Duporth Road, Rolleston, 7614 is a Residential property built in 2024 with 3 bedrooms, 2 bathrooms and 1 parking space. The property is estimated to be valued in the range of $650,000 to $700,000.
It is unknown when the property was last sold or how much it was sold for. On 1 September 2024, 13 Duporth Road, Rolleston, 7614 had a Rating Valuation with a Capital Value of $650,000, Land Value of $270,000 and Improvement Value of $380,000.
| Date | Type | Price | Agent/Agency |
|---|---|---|---|
| 18 Mar 2024 | ASKING PRICE | $669,000 | Freedom Built of Freedom Built |
Lot 205 Deposited Plan 601643
There are no similar properties in the area that are listed for sale or recently sold.