
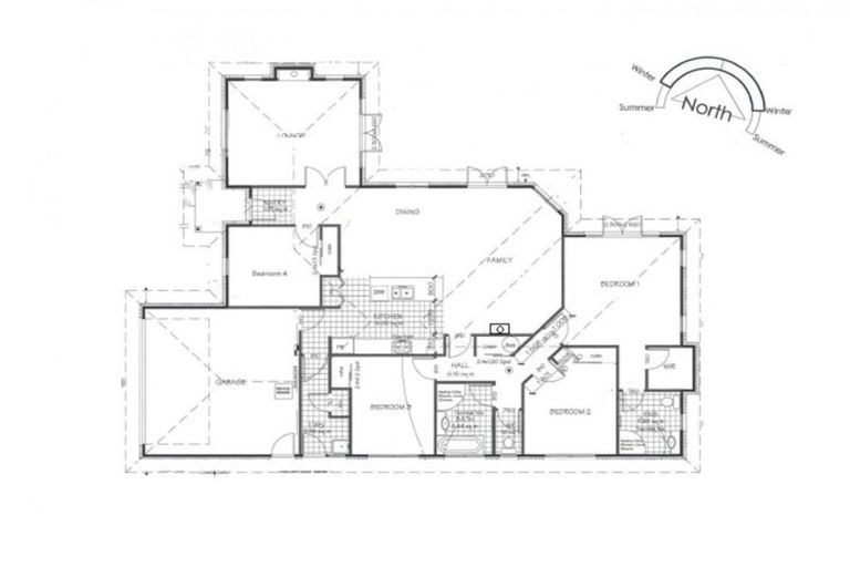
12 Christie Place, Rolleston, 7614 is a Residential property built in 2008 with 4 bedrooms, 2 bathrooms and 2 parking spaces. The property is estimated to be valued in the range of $800,000 to $900,000.
It is unknown when the property was last sold or how much it was sold for. On 1 September 2024, 12 Christie Place, Rolleston, 7614 had a Rating Valuation with a Capital Value of $870,000, Land Value of $380,000 and Improvement Value of $490,000.
Lot 26 Deposited Plan 403542
There are no similar properties in the area that are listed for sale or recently sold.