
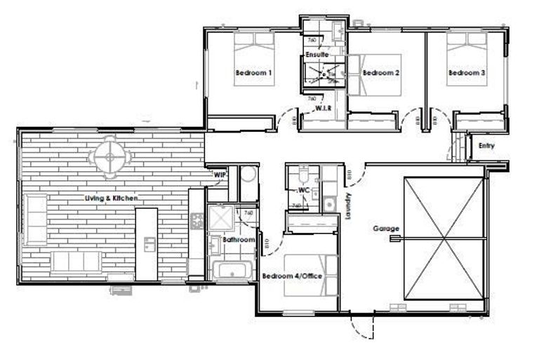
10 Harlequin Drive, Rolleston, 7614 is a Residential property built in 2025 with 4 bedrooms, 2 bathrooms and 2 parking spaces. The property is estimated to be valued in the range of $750,000 to $800,000.
The property last sold on 11 January 2026 for an unknown price. It was sold by Fraemohs Homes NZ Ltd, and took 284 days to sell. On 1 September 2024, 10 Harlequin Drive, Rolleston, 7614 had a Rating Valuation with a Capital Value of $760,000, Land Value of $330,000 and Improvement Value of $430,000.
| Date | Type | Price | Agent/Agency |
|---|---|---|---|
| 11 Jan 2026 | $0 | Pending Settlement Advice | |
| 3 Apr 2025 | ASKING PRICE | $779,000 | Sean Lally of Fraemohs Homes NZ Ltd |
Lot 824 Deposited Plan 614255
There are no similar properties in the area that are listed for sale or recently sold.