
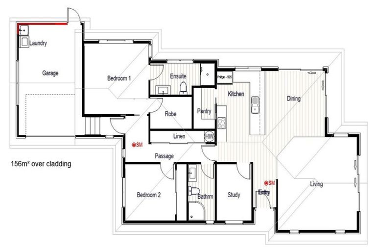
154c Beach Road, Kaikoura, 7300 is a Residential property built in 2024 with 2 bedrooms, 2 bathrooms and 1 parking space. The property is estimated to be valued in the range of $800,000 to $900,000.
It is unknown when the property was last sold or how much it was sold for. On 1 July 2024, 154c Beach Road, Kaikoura, 7300 had a Rating Valuation with a Capital Value of $850,000, Land Value of $250,000 and Improvement Value of $600,000.
| Date | Type | Price | Agent/Agency |
|---|---|---|---|
| 2 Nov 2023 | BY NEGOTIATION | Price Not Disclosed | Melissa Carson of Blue Sales Realty, (Licensed: Reaa 2008) |
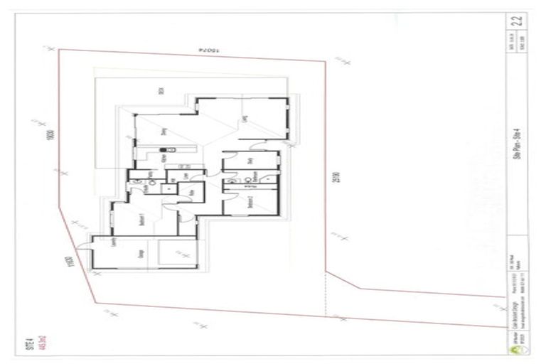
Lot 8 Deposited Plan 598925
There are no similar properties in the area that are listed for sale or recently sold.