
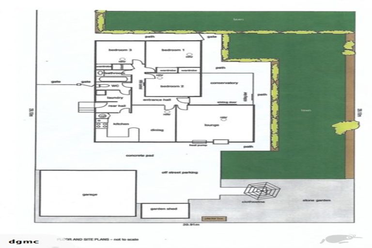
26 Compton Street, Woolston, Christchurch, 8062 is a Residential property built in 1960 with 3 bedrooms, 1 bathroom and 2 parking spaces. The property is estimated to be valued in the range of $550,000 to $600,000.
It is unknown when the property was last sold or how much it was sold for. On 1 August 2022, 26 Compton Street, Woolston, Christchurch, 8062 had a Rating Valuation with a Capital Value of $560,000, Land Value of $340,000 and Improvement Value of $220,000.
| Date | Type | Price | Agent/Agency |
|---|---|---|---|
| 4 Jul 2018 | Rented | $370 | |
| 23 Apr 2018 | AUCTION | Price Not Disclosed | Christopher Graham of Grenadier Real Estate Ltd City |
Lot 2 Deposited Plan 23943
There are no similar properties in the area that are listed for sale or recently sold.