
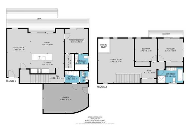
87 Clare Road, St Albans, Christchurch, 8014 is a Residential property built in 2023 with 3 bedrooms, 2 bathrooms and 1 parking space. The property is estimated to be valued in the range of $1,400,000 to $1,500,000.
The property last sold on 31 March 2025 for an unknown price. It was sold by Grenadier Real Estate Ltd City, (Licensed: Reaa 2008), and took 68 days to sell. On 1 August 2022, 87 Clare Road, St Albans, Christchurch, 8014 had a Rating Valuation with a Capital Value of $1,425,000, Land Value of $620,000 and Improvement Value of $805,000.
| Date | Type | Price | Agent/Agency |
|---|---|---|---|
| 31 Mar 2025 | $0 | Pending Settlement Advice | |
| 23 Jan 2025 | ASKING PRICE | $1,345,000 | Alison Aitken of Grenadier Real Estate Ltd City, (Licensed: Reaa 2008) |
Lot 2 Deposited Plan 588738
There are no similar properties in the area that are listed for sale or recently sold.