
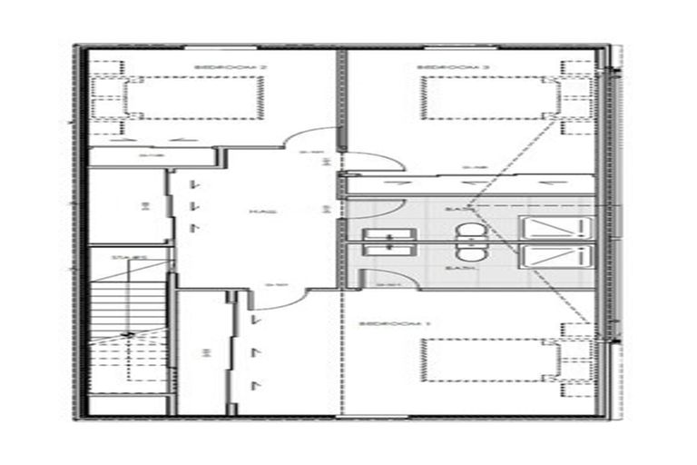
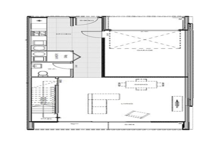
27 Malaga Crescent, Harewood, Christchurch, 8051 is a Residential property built in 2025 with 4 bedrooms, 4 bathrooms and 2 parking spaces. The property is estimated to be valued in the range of $1,000,000 to $1,100,000.
It is unknown when the property was last sold or how much it was sold for. On 1 August 2022, 27 Malaga Crescent, Harewood, Christchurch, 8051 had a Rating Valuation with a Capital Value of $1,000,000, Land Value of $510,000 and Improvement Value of $490,000.
| Date | Type | Price | Agent/Agency |
|---|---|---|---|
| 7 Sep 2023 | ASKING PRICE | $879,000 | Lego Ho of Mike Greer Homes Ltd |
Lot 66 Deposited Plan 564055
There are no similar properties in the area that are listed for sale or recently sold.