
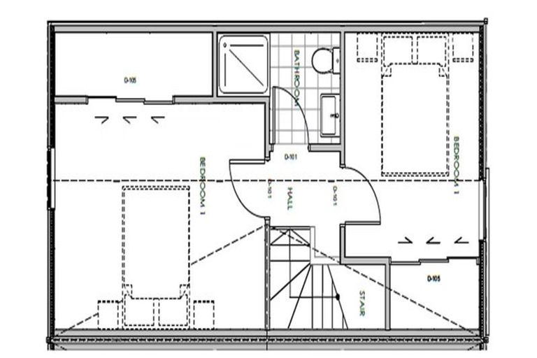
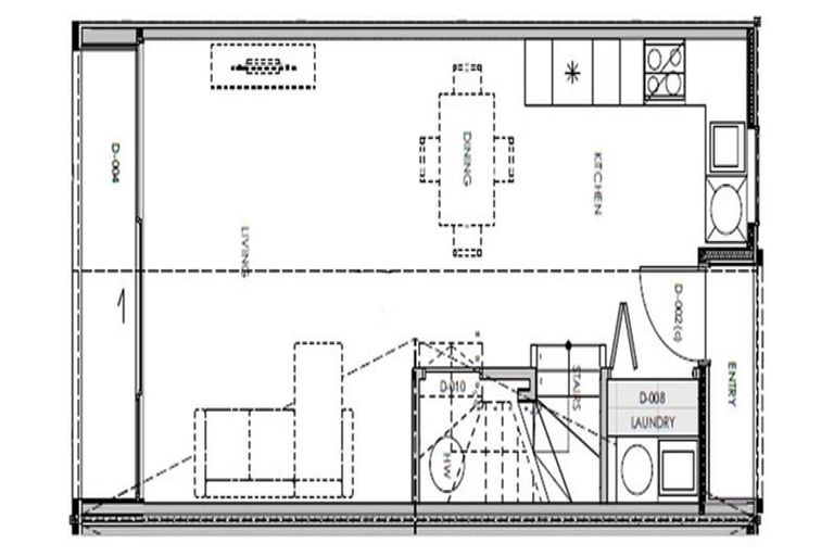
17a Malaga Crescent, Harewood, Christchurch, 8051 is a Residential property built in 2023 with 2 bedrooms, 1 bathroom and 1 parking space. The property is estimated to be valued in the range of $600,000 to $650,000.
The property last sold on 16 January 2026 for an unknown price. It was sold by Investr Limited, and took 52 days to sell. On 1 August 2022, 17a Malaga Crescent, Harewood, Christchurch, 8051 had a Rating Valuation with a Capital Value of $690,000, Land Value of $220,000 and Improvement Value of $470,000.
| Date | Type | Price | Agent/Agency |
|---|---|---|---|
| 16 Jan 2026 | $0 | Pending Settlement Advice | |
| 26 Nov 2025 | ASKING PRICE | $599,000 | Robbie Shepherd of Investr Limited |
Lot 6 Deposited Plan 593730
There are no similar properties in the area that are listed for sale or recently sold.