
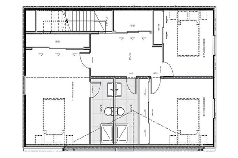
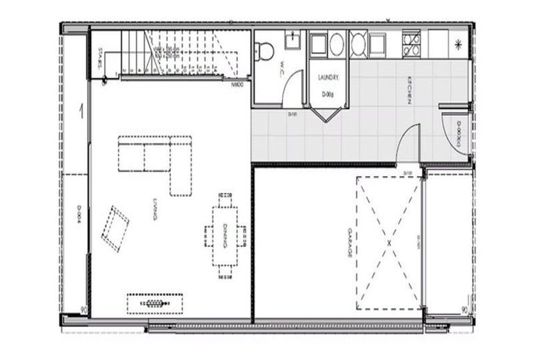
11 Malaga Crescent, Harewood, Christchurch, 8051 is a Residential property built in 2024 with 3 bedrooms, 2 bathrooms and 1 parking space. The property is estimated to be valued in the range of $750,000 to $800,000.
It is unknown when the property was last sold or how much it was sold for. On 1 August 2022, 11 Malaga Crescent, Harewood, Christchurch, 8051 had a Rating Valuation with a Capital Value of $830,000, Land Value of $290,000 and Improvement Value of $540,000.
| Date | Type | Price | Agent/Agency |
|---|---|---|---|
| 26 Nov 2025 | ASKING PRICE | $799,000 | Adam Leath of Investr Limited |
Lot 13 Deposited Plan 601994
There are no similar properties in the area that are listed for sale or recently sold.