
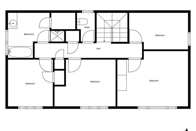
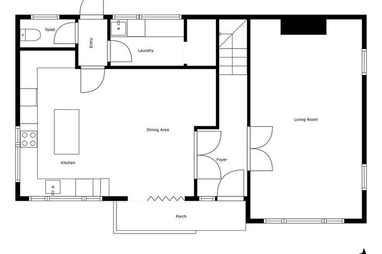
70 Landsdowne Terrace, Cashmere, Christchurch, 8022 is a Residential property built in 1970 with 4 bedrooms, 1 bathroom and 1 parking space. The property is estimated to be valued in the range of $800,000 to $900,000.
The property last sold on 20 September 2025 for an unknown price. On 1 August 2022, 70 Landsdowne Terrace, Cashmere, Christchurch, 8022 had a Rating Valuation with a Capital Value of $880,000, Land Value of $430,000 and Improvement Value of $450,000.
| Date | Type | Price | Agent/Agency |
|---|---|---|---|
| 20 Sep 2025 | $868,000 | Pending Settlement Advice | |
| 17 Aug 2017 | SOLD | $600,000 | Bee Banks of Grenadier Real Estate Ltd City |
| 17 Aug 2017 | SOLD | $600,000 | Bee Banks of Grenadier Real Estate Ltd City |
| 5 May 2017 | AUCTION | Price Not Disclosed | Bee Banks of Grenadier Real Estate Ltd City |
| 5 May 2017 | AUCTION | Price Not Disclosed | Bee Banks of Grenadier Real Estate Ltd City |
| 2 Oct 2009 | SOLD | $431,000 | Daryl Johnston of Simes Real Estate |
| 18 Aug 2009 | DEADLINE PRIVATE TREATY | $410,000 | Daryl Johnston of Simes Real Estate |
| 19 Nov 2001 | SOLD | $257,000 | |
| 8 Mar 1985 | SOLD | $133,500 |
Lot 14 Deposited Plan 27266
There are no similar properties in the area that are listed for sale or recently sold.