
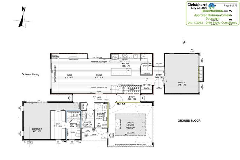
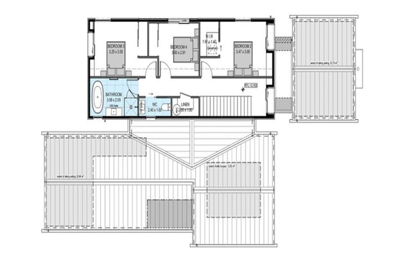
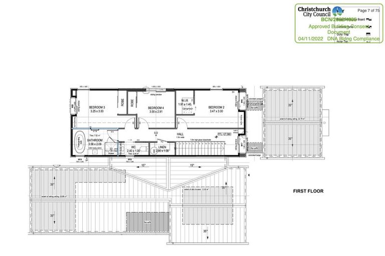
69 Tulett Park Drive, Casebrook, Christchurch, 8051 is a Residential property built in 2023 with 4 bedrooms, 2 bathrooms and 2 parking spaces. The property is estimated to be valued in the range of $1,500,000 to $1,600,000.
The property last sold on 2 September 2024 for $1,500,000. It was sold by Mike Greer Homes Ltd, and took 223 days to sell. On 1 August 2022, 69 Tulett Park Drive, Casebrook, Christchurch, 8051 had a Rating Valuation with a Capital Value of $1,320,000, Land Value of $455,000 and Improvement Value of $865,000.
| Date | Type | Price | Agent/Agency |
|---|---|---|---|
| 2 Sep 2024 | SOLD | $1,500,000 | Amelia Young of Mike Greer Homes Ltd |
| 2 Nov 2023 | ASKING PRICE | $1,599,000 | Sandy McLean of Mike Greer Homes Ltd |
| 27 Jul 2023 | BY NEGOTIATION | Price Not Disclosed | Bridget Perry of Executive Real Estate, (Licensed: Reaa 2008) |
| 19 May 2021 | SOLD | $3,326,086 |
Lot 32 Deposited Plan 575020
There are no similar properties in the area that are listed for sale or recently sold.