
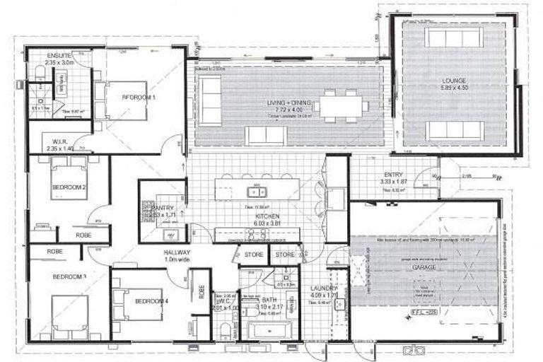
11 Tulett Park Drive, Casebrook, Christchurch, 8051 is a Residential property built in 2021 with 4 bedrooms, 2 bathrooms and 2 parking spaces. The property is estimated to be valued in the range of $1,300,000 to $1,400,000.
The property last sold on 16 October 2025 for an unknown price. It was sold by Harcourts Grenadier - Riccarton, (Licensed: Reaa 2008). On 1 August 2022, 11 Tulett Park Drive, Casebrook, Christchurch, 8051 had a Rating Valuation with a Capital Value of $1,300,000, Land Value of $455,000 and Improvement Value of $845,000.
| Date | Type | Price | Agent/Agency |
|---|---|---|---|
| 16 Oct 2025 | $0 | Pending Settlement Advice | |
| 13 Aug 2025 | BY NEGOTIATION | Price Not Disclosed | |
| 3 Oct 2024 | Rented | $1,100 | Anna Wang of Orbit Property Management Ltd |
| 24 Apr 2023 | Rented | $950 | Amy Macgregor of Bayleys Property Management Ltd |
| 18 Jan 2023 | ASKING PRICE | $1,290,000 | Lin Ma of Harcourts Grenadier Wigram, (Licensed: Reaa 2008) |
| 17 Jun 2022 | BY NEGOTIATION | Price Not Disclosed | Christine Binnie of Glass Miles Ltd |
Lot 206 Deposited Plan 530731
There are no similar properties in the area that are listed for sale or recently sold.