
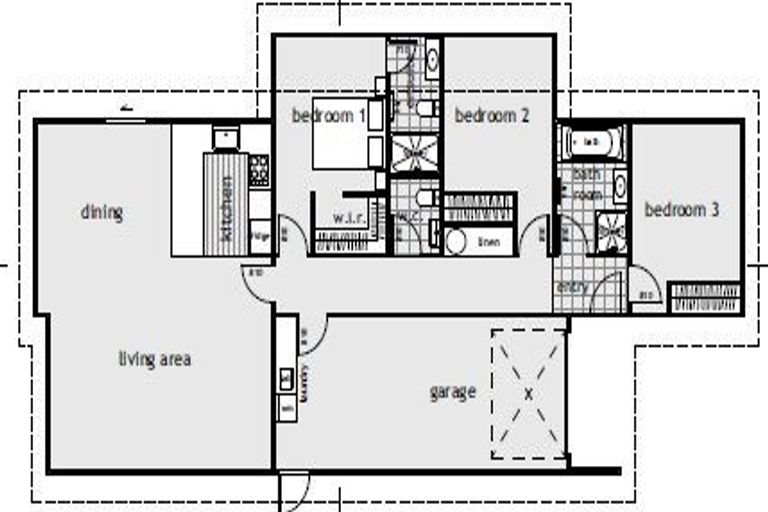
26 Horoeka Street, Avonhead, Christchurch, 8042 is a Residential property built in 2020 with 3 bedrooms, 2 bathrooms and 2 parking spaces. The property is estimated to be valued in the range of $750,000 to $800,000.
The property last sold on 5 April 2025 for an unknown price. It was sold by Total Realty South Island - Canterbury, (Licensed: Reaa 2008), and took 40 days to sell. On 1 August 2022, 26 Horoeka Street, Avonhead, Christchurch, 8042 had a Rating Valuation with a Capital Value of $750,000, Land Value of $330,000 and Improvement Value of $420,000.
| Date | Type | Price | Agent/Agency |
|---|---|---|---|
| 5 Apr 2025 | $740,000 | Pending Settlement Advice | |
| 25 Feb 2025 | ENQUIRIES OVER | $740,000 | Karla Hubac of Total Realty South Island - Canterbury, (Licensed: Reaa 2008) |
| 6 Mar 2021 | SOLD | $630,000 | |
| 26 Feb 2021 | DEADLINE PRIVATE TREATY | Price Not Disclosed | Chris Spence of Mike Pero Real Estate - Harewood, (Licensed: Reaa 2008) |
| 27 Jun 2019 | SOLD | $544,000 | |
| 27 Jun 2019 | SOLD | $544,000 |
Lot 41 Deposited Plan 518070
There are no similar properties in the area that are listed for sale or recently sold.