
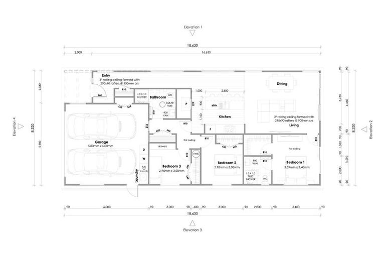
43 Hinaki Street, Poike, Tauranga, 3112 is a Residential property with 3 bedrooms, 2 bathrooms and 0 parking spaces. The property is estimated to be valued in the range of $1,000,000 to $1,100,000.
It is unknown when the property was last sold or how much it was sold for. On 1 May 2023, 43 Hinaki Street, Poike, Tauranga, 3112 had a Rating Valuation with a Capital Value of $510,000 and Land Value of $510,000.
| Date | Type | Price | Agent/Agency |
|---|---|---|---|
| 24 Sep 2025 | ASKING PRICE | $1,049,000 | Emily Phibbs of Venture Developements Ltd |
| 21 Sep 2022 | ASKING PRICE | $563,000 | Ritchie Wright of Eves Papamoa, (Licensed: Reaa 2008) |
Lot 210 Deposited Plan 547994
There are no similar properties in the area that are listed for sale or recently sold.