
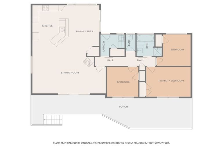
86 Haukore Street, Hairini, Tauranga, 3112 is a Residential property built in 1985 with 3 bedrooms, 1 bathroom and 2 parking spaces. The property is estimated to be valued in the range of $700,000 to $750,000.
The property last sold on 17 July 2012 for $362,000. It was sold by Eves Realty Willow St, Tauranga, and took 33 days to sell. On 1 May 2023, 86 Haukore Street, Hairini, Tauranga, 3112 had a Rating Valuation with a Capital Value of $780,000, Land Value of $450,000 and Improvement Value of $330,000.
| Date | Type | Price | Agent/Agency |
|---|---|---|---|
| 23 Apr 2025 | AUCTION | Price Not Disclosed | Lewis Reid of Eves Realty Limited |
| 17 Jul 2012 | SOLD | $362,000 | Chris Royal of Eves Realty Willow St, Tauranga |
| 15 Jun 2012 | AUCTION | Price Not Disclosed | Chris Royal of Eves Realty Willow St, Tauranga |
| 21 Oct 2005 | DEADLINE PRIVATE TREATY | $339,000 | Wilma Plugge of Eves Willow Street |
| 3 Jan 2002 | SOLD | $178,500 | |
| 28 Sep 1994 | SOLD | $157,000 | |
| 1 May 1993 | SOLD | $128,000 | |
| 2 Oct 1989 | SOLD | $129,500 | |
| 15 Jan 1985 | SOLD | $20,000 | |
| 23 Jun 1983 | SOLD | $18,000 |
Lot 37 Deposited Plan South Auckland 23444
There are no similar properties in the area that are listed for sale or recently sold.