
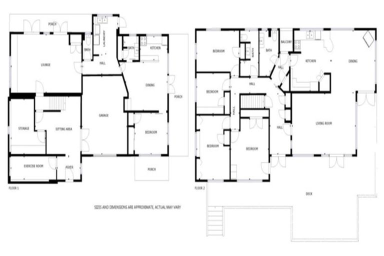
127 Konini Road, Titirangi, Auckland, 0604 is a Residential property built in 1963 with 5 bedrooms, 3 bathrooms and 3 parking spaces. The property is estimated to be valued in the range of $1,400,000 to $1,500,000.
The property last sold on 23 November 2020 for $1,252,000. On 1 June 2021, 127 Konini Road, Titirangi, Auckland, 0604 had a Rating Valuation with a Capital Value of $1,525,000, Land Value of $760,000 and Improvement Value of $765,000.
| Date | Type | Price | Agent/Agency |
|---|---|---|---|
| 23 Nov 2020 | SOLD | $1,252,000 | |
| 4 Mar 2020 | BY NEGOTIATION | Price Not Disclosed | Karlene Ashworth-Dennis of Unlimited Potential Herne Bay, (Licensed: Reaa 2008) |
| 18 Feb 2019 | PRICE ON APPLICATION | Price Not Disclosed | Karen Trevissick of Barfoot & Thompson Titirangi |
| 10 Jan 1996 | SOLD | $310,000 | |
| 17 Feb 1994 | SOLD | $258,000 | |
| 9 Nov 1991 | SOLD | $242,000 |
Lot 299 Deposited Plan 25642
There are no similar properties in the area that are listed for sale or recently sold.