
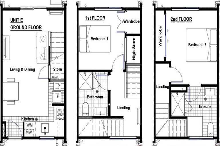
5/57 Taikata Road, Te Atatu Peninsula, Auckland, 0610 is a Residential property built in 2021 with 2 bedrooms, 2 bathrooms and 1 parking space. The property is estimated to be valued in the range of $650,000 to $700,000.
The property last sold on 15 February 2021 for $715,000. On 1 June 2021, 5/57 Taikata Road, Te Atatu Peninsula, Auckland, 0610 had a Rating Valuation with a Capital Value of $800,000, Land Value of $400,000 and Improvement Value of $400,000.
| Date | Type | Price | Agent/Agency |
|---|---|---|---|
| 15 Feb 2021 | SOLD | $715,000 |
Lot 5 Deposited Plan 564943
There are no similar properties in the area that are listed for sale or recently sold.