
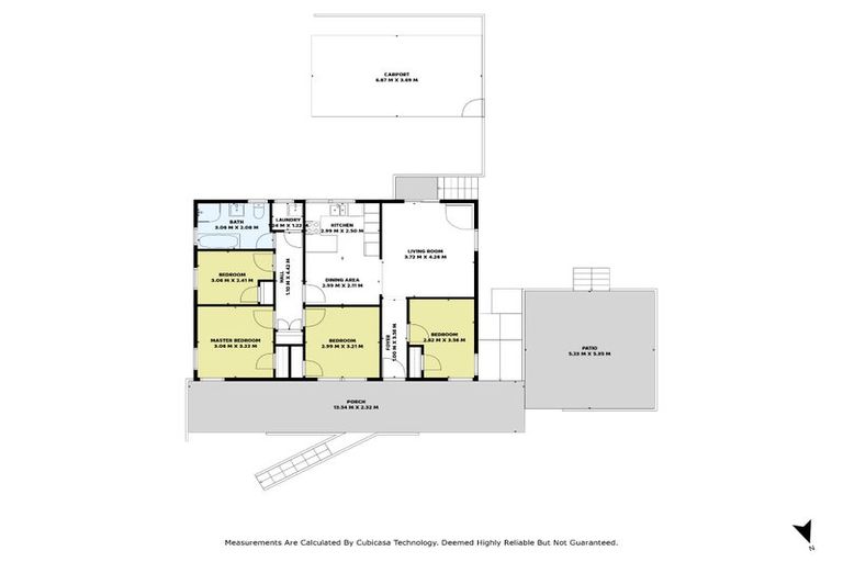
15 Donovan Avenue, Massey, Auckland, 0614 is a Residential property built in 1955 with 4 bedrooms, 1 bathroom and 1 parking space. The property is estimated to be valued in the range of $800,000 to $900,000.
The property last sold on 13 March 2024 for $850,000. It was sold by Harcourts Henderson Heights Blue Fern Realty, (Licensed: Reaa 2008), and took 30 days to sell. On 1 June 2021, 15 Donovan Avenue, Massey, Auckland, 0614 had a Rating Valuation with a Capital Value of $890,000, Land Value of $650,000 and Improvement Value of $240,000.
| Date | Type | Price | Agent/Agency |
|---|---|---|---|
| 13 Mar 2024 | SOLD | $850,000 | |
| 13 Feb 2024 | BY NEGOTIATION | Price Not Disclosed | Trudi Ashby of Harcourts Henderson Heights Blue Fern Realty, (Licensed: Reaa 2008) |
| 4 Sep 2018 | SOLD | $680,000 | Jason Ingram of Austar Realty Ltd Ray White, Massey Licensed: Reaa 2008 |
| 4 Sep 2018 | SOLD | $680,000 | Jason Ingram of Austar Realty Ltd Ray White, Massey Licensed: Reaa 2008 |
| 25 Jul 2018 | ASKING PRICE | $699,000 | Jason Ingram of Austar Realty Ltd Ray White, Massey Licensed: Reaa 2008 |
| 25 Jul 2018 | ASKING PRICE | $699,000 | Jason Ingram of Austar Realty Ltd Ray White, Massey Licensed: Reaa 2008 |
| 1 May 2018 | SOLD | $510,000 | |
| 16 Apr 2018 | ASKING PRICE | $549,000 | Bruce Moore of Harcourts Henderson Heights Blue Fern Realty |
| 24 Feb 2010 | DEADLINE PRIVATE TREATY | $329,000 | Warren Bexley of Barfoot & Thompson West Harbour |
| 25 Nov 2009 | DEADLINE PRIVATE TREATY | $339,000 | Warren Bexley of Barfoot & Thompson West Harbour |
| 22 May 1997 | PARTIAL SALE | $74,000 | |
| 12 Dec 1996 | SOLD | $140,000 | |
| 9 Nov 1996 | SOLD | $145,000 | |
| 4 Aug 1994 | SOLD | $83,000 | |
| 25 Aug 1984 | SOLD | $48,000 | |
| 24 Feb 1983 | SOLD | $25,000 |
Lot 1 Deposited Plan 180657
There are no similar properties in the area that are listed for sale or recently sold.