
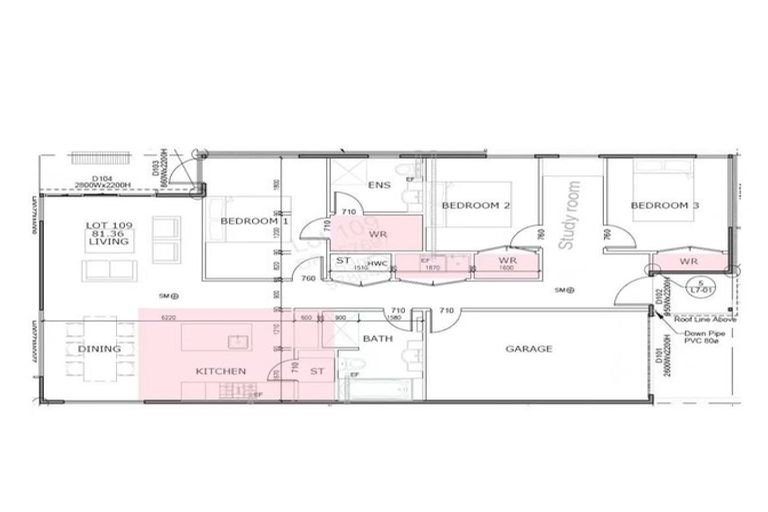
1 Horokaka Street, Massey, Auckland, 0614 is a Residential property built in 2022 with 3 bedrooms, 2 bathrooms and 1 parking space. The property is estimated to be valued in the range of $900,000 to $1,000,000.
It is unknown when the property was last sold or how much it was sold for. On 1 May 2024, 1 Horokaka Street, Massey, Auckland, 0614 had a Rating Valuation with a Capital Value of $1,000,000, Land Value of $440,000 and Improvement Value of $560,000.
| Date | Type | Price | Agent/Agency |
|---|---|---|---|
| 9 Jan 2023 | ENQUIRIES OVER | $939,000 | Josh Yuan of Harcourts - Golden Links Real Estate Limited, (Licensed: Reaa 2008) |
Lot 109 Deposited Plan 557697
There are no similar properties in the area that are listed for sale or recently sold.