
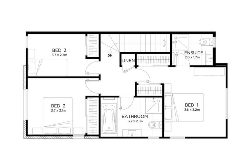
61 Nugget Avenue, Hobsonville, Auckland, 0616 is a Residential property built in 2022 with 3 bedrooms, 2 bathrooms and 1 parking space. The property is estimated to be valued in the range of $900,000 to $1,000,000.
It is unknown when the property was last sold or how much it was sold for. On 1 May 2024, 61 Nugget Avenue, Hobsonville, Auckland, 0616 had a Rating Valuation with a Capital Value of $1,000,000, Land Value of $560,000 and Improvement Value of $440,000.
| Date | Type | Price | Agent/Agency |
|---|---|---|---|
| 9 Mar 2023 | ASKING PRICE | $989,000 | Christina Tubman of Fletcher Living |
Lot 68, 117 Deposited Plan 549885
There are no similar properties in the area that are listed for sale or recently sold.