
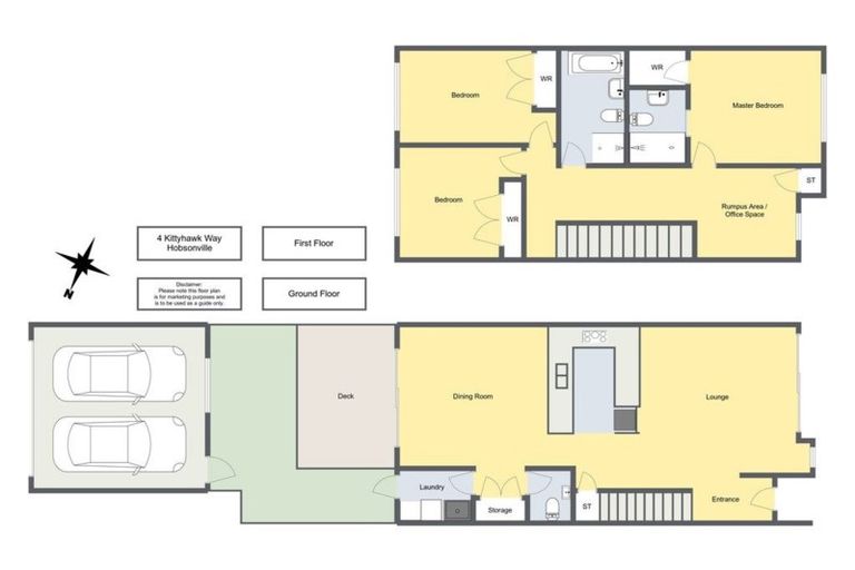
4 Kittyhawk Lane, Hobsonville, Auckland, 0616 is a Residential property built in 2013 with 3 bedrooms, 2 bathrooms and 2 parking spaces. The property is estimated to be valued in the range of $1,000,000 to $1,100,000.
It is unknown when the property was last sold or how much it was sold for. On 1 May 2024, 4 Kittyhawk Lane, Hobsonville, Auckland, 0616 had a Rating Valuation with a Capital Value of $1,125,000, Land Value of $575,000 and Improvement Value of $550,000.
| Date | Type | Price | Agent/Agency |
|---|---|---|---|
| 11 Apr 2018 | ASKING PRICE | Price Not Disclosed | Mickey Byun of Barfoot & Thompson Ltd Te Atatu Peninsula License |
| 4 Nov 2016 | ASKING PRICE | Price Not Disclosed | Michael Tromp of Prestige Real Estate International Ltd |
Lot 2 Deposited Plan 459107
There are no similar properties in the area that are listed for sale or recently sold.