
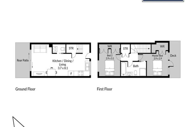
37 Treloar Crescent, Hobsonville, Auckland, 0616 is a Residential property built in 2021 with 2 bedrooms, 1 bathroom and 1 parking space. The property is estimated to be valued in the range of $700,000 to $750,000.
The property last sold on 24 January 2024 for $800,000. It was sold by Bayleys Northwest, (Licensed: Reaa 2008), and took 43 days to sell. On 1 June 2021, 37 Treloar Crescent, Hobsonville, Auckland, 0616 had a Rating Valuation with a Capital Value of $790,000, Land Value of $485,000 and Improvement Value of $305,000.
| Date | Type | Price | Agent/Agency |
|---|---|---|---|
| 26 Feb 2024 | Rented | $690 | Sam Hewetson of Aspire Property Management |
| 24 Jan 2024 | SOLD | $800,000 | |
| 13 Dec 2023 | ASKING PRICE | $819,000 | Cherry Kingsley-Smith of Bayleys Northwest, (Licensed: Reaa 2008) |
| 1 Jun 2020 | SOLD | $743,000 |
Lot 200 Deposited Plan 559832
There are no similar properties in the area that are listed for sale or recently sold.