
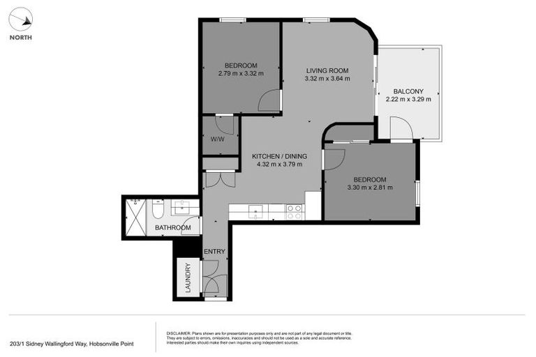
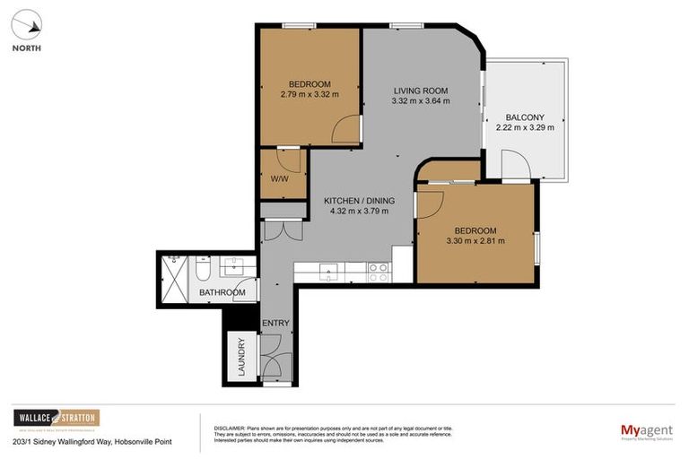
203/1 Sidney Wallingford Way, Hobsonville, Auckland, 0616 is a Residential property built in 2018 with 2 bedrooms, 1 bathroom and 1 parking space. The property is estimated to be valued in the range of $550,000 to $600,000.
The property last sold on 19 May 2023 for $655,000. It was sold by New Zealand Sotheby's International Realty - North, (Licensed: Reaa 2008), and took 30 days to sell. On 1 June 2021, 203/1 Sidney Wallingford Way, Hobsonville, Auckland, 0616 had a Rating Valuation with a Capital Value of $705,000, Land Value of $235,000 and Improvement Value of $470,000.
| Date | Type | Price | Agent/Agency |
|---|---|---|---|
| 19 May 2023 | SOLD | $655,000 | |
| 20 Apr 2023 | BY NEGOTIATION | Price Not Disclosed | Keri Gerrard of New Zealand Sotheby's International Realty - North, (Licensed: Reaa 2008) |
| 26 May 2021 | Rented | $550 | |
| 24 Jun 2020 | Rented | $550 | |
| 18 Apr 2017 | SOLD | $640,000 |
Principal Unit 5203 and Accessory Unit 26 Deposited Plan 519959
There are no similar properties in the area that are listed for sale or recently sold.