
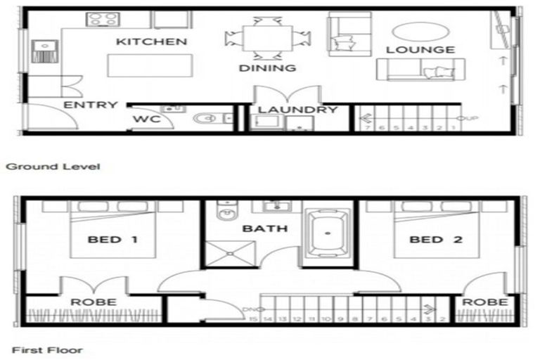
18 Shelduck Way, Hobsonville, Auckland, 0616 is a Residential property built in 2016 with 2 bedrooms, 2 bathrooms and 2 parking spaces. The property is estimated to be valued in the range of $750,000 to $800,000.
The property last sold on 27 August 2016 for $500,000. On 1 June 2021, 18 Shelduck Way, Hobsonville, Auckland, 0616 had a Rating Valuation with a Capital Value of $860,000, Land Value of $525,000 and Improvement Value of $335,000.
| Date | Type | Price | Agent/Agency |
|---|---|---|---|
| 16 Nov 2024 | Rented | $670 | Myrent.Co.Nz of Myrent.Co.NZ Ltd |
| 8 Jan 2021 | Rented | $635 | |
| 12 Jan 2020 | Rented | $625 | Proper Renting of Proper |
| 27 Aug 2016 | SOLD | $500,000 |
Lot 20 Deposited Plan 484566
There are no similar properties in the area that are listed for sale or recently sold.