
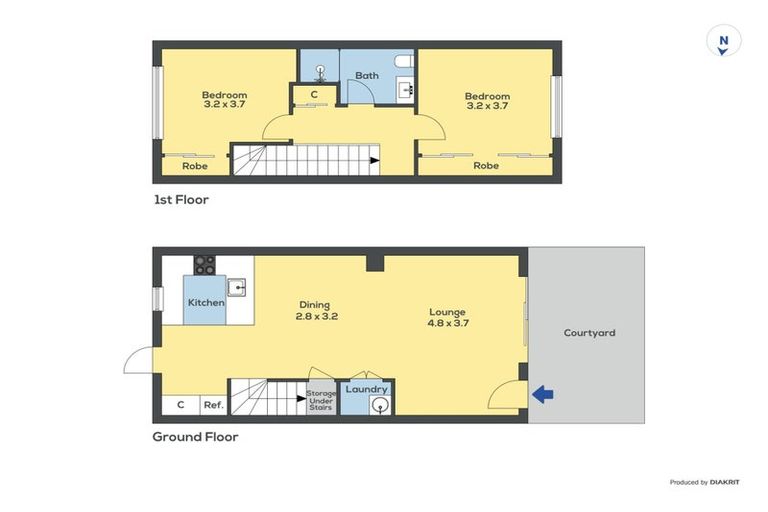
13 Piko Lane, Hobsonville, Auckland, 0616 is a Residential property built in 2018 with 2 bedrooms, 1 bathroom and 1 parking space. The property is estimated to be valued in the range of $750,000 to $800,000.
The property last sold on 6 June 2025 for $735,000. It took 25 days to sell. On 1 May 2024, 13 Piko Lane, Hobsonville, Auckland, 0616 had a Rating Valuation with a Capital Value of $770,000, Land Value of $505,000 and Improvement Value of $265,000.
| Date | Type | Price | Agent/Agency |
|---|---|---|---|
| 6 Jun 2025 | SOLD | $735,000 | |
| 13 May 2025 | BY NEGOTIATION | Price Not Disclosed | |
| 9 Jan 2023 | Rented | $620 | |
| 28 Oct 2021 | Rented | $620 | |
| 17 Jul 2021 | Rented | $595 |
Lot 20, 102 Deposited Plan 524919
There are no similar properties in the area that are listed for sale or recently sold.