
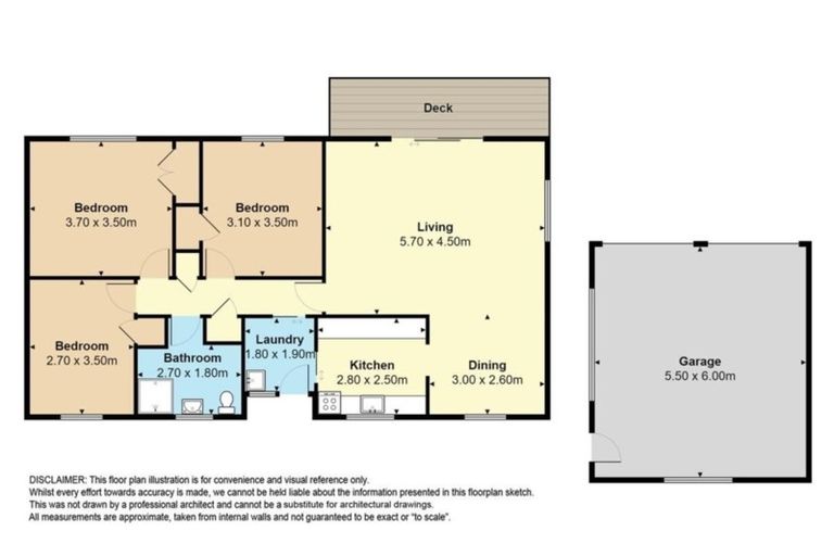
54 Hindmarsh Street, Henderson, Auckland, 0612 is a Residential property built in 1988 with 3 bedrooms, 1 bathroom and 2 parking spaces. The property is estimated to be valued in the range of $800,000 to $900,000.
The property last sold on 16 July 1999 for $160,000. On 1 June 2021, 54 Hindmarsh Street, Henderson, Auckland, 0612 had a Rating Valuation with a Capital Value of $950,000, Land Value of $840,000 and Improvement Value of $110,000.
| Date | Type | Price | Agent/Agency |
|---|---|---|---|
| 14 Jan 2020 | BY NEGOTIATION | Price Not Disclosed | Benita Dwyer of Blue Fern Realty Ltd (Licensed: Reaa 2008) - Harcourts, Henderson Heights |
| 16 Jul 1999 | SOLD | $160,000 | |
| 17 Nov 1995 | SOLD | $155,500 | |
| 4 Oct 1995 | SOLD | $125,000 | |
| 28 Jan 1988 | SOLD | $21,200 |
Lot 52 Deposited Plan 111788
There are no similar properties in the area that are listed for sale or recently sold.