
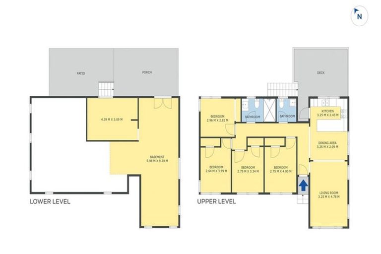
94 Harrington Road, Henderson, Auckland, 0610 is a Residential property built in 1967 with 3 bedrooms, 1 bathroom and 1 parking space. The property is estimated to be valued in the range of $1,000,000 to $1,100,000.
The property last sold on 25 May 2023 for $930,000. On 1 June 2021, 94 Harrington Road, Henderson, Auckland, 0610 had a Rating Valuation with a Capital Value of $1,600,000, Land Value of $1,525,000 and Improvement Value of $75,000.
| Date | Type | Price | Agent/Agency |
|---|---|---|---|
| 13 Nov 2024 | Rented | $720 | David Zhao of Pan Kiwi Realty Ltd |
| 25 May 2023 | SOLD | $930,000 | |
| 5 Jun 1982 | SOLD | $55,000 |
Lot 47 Deposited Plan 48130
There are no similar properties in the area that are listed for sale or recently sold.