
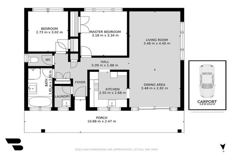
3/50 Te Kanawa Crescent, Henderson, Auckland, 0610 is a Residential property built in 1973 with 2 bedrooms, 1 bathroom and 1 parking space. The property is estimated to be valued in the range of $600,000 to $650,000.
The property last sold on 3 September 2021 for $690,000. It was sold by Ray White Ponsonby (Damerell Group Ltd). On 1 June 2021, 3/50 Te Kanawa Crescent, Henderson, Auckland, 0610 had a Rating Valuation with a Capital Value of $625,000, Land Value of $575,000 and Improvement Value of $50,000.
| Date | Type | Price | Agent/Agency |
|---|---|---|---|
| 30 Apr 2024 | Rented | $580 | Moritz Muck of Harveys Henderson M2 Real Estate Limited, (Licensed: Reaa 2008) |
| 11 Apr 2024 | ASKING PRICE | $665,000 | Neal & Megs Maguire of Harveys Synergy, (Licensed: Reaa 2008) |
| 3 Sep 2021 | SOLD | $690,000 | Crystal McKeown of Ray White Ponsonby (Damerell Group Ltd) |
| 3 Sep 2021 | SOLD | $690,000 | |
| 28 Jul 2021 | ASKING PRICE | $689,000 | Crystal McKeown of Ray White Ponsonby (Damerell Group Ltd), (Licensed: Reaa 2008) |
| 28 Jul 2021 | ASKING PRICE | $689,000 | Crystal McKeown of Ray White Ponsonby (Damerell Group Ltd), (Licensed: Reaa 2008) |
| 20 Aug 2020 | SOLD | $480,000 | |
| 23 Feb 2020 | ASKING PRICE | $499,000 | Eric Shi of Barfoot & Thompson Te Atatu |
| 9 Feb 2017 | SOLD | $470,000 | |
| 13 Mar 2008 | DEADLINE PRIVATE TREATY | $252,000 | Paul Yang of Barfoot & Thompson |
| 21 Sep 2001 | SOLD | $122,000 | |
| 17 Mar 1981 | SOLD | $32,500 |
Lot 2 Deposited Plan 51895
There are no similar properties in the area that are listed for sale or recently sold.