
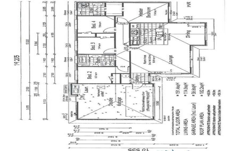
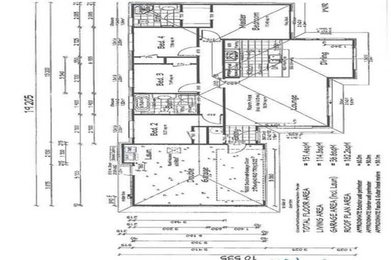
25 John Andrew Drive, Warkworth, 0910 is a Residential property built in 2022 with 4 bedrooms, 2 bathrooms and 2 parking spaces. The property is estimated to be valued in the range of $1,000,000 to $1,100,000.
The property last sold on 8 March 2021 for $460,000. On 1 June 2021, 25 John Andrew Drive, Warkworth, 0910 had a Rating Valuation with a Capital Value of $1,050,000, Land Value of $465,000 and Improvement Value of $585,000.
| Date | Type | Price | Agent/Agency |
|---|---|---|---|
| 13 Dec 2024 | Rented | $725 | Myrent.Co.Nz of Myrent.Co.NZ Ltd |
| 12 May 2024 | Rented | $725 | Myrent.Co.Nz of Myrent.Co.NZ Ltd |
| 2 Oct 2022 | Rented | $675 | Myrent.Co.Nz of Myrent.Co.NZ Ltd |
| 8 Mar 2021 | SOLD | $460,000 | |
| 23 Oct 2018 | ASKING PRICE | $395,000 | Michele Bensley of Key2 Real Estate Limited, (Licensed: Reaa 2008) |
Lot 10 Deposited Plan 513669
There are no similar properties in the area that are listed for sale or recently sold.