
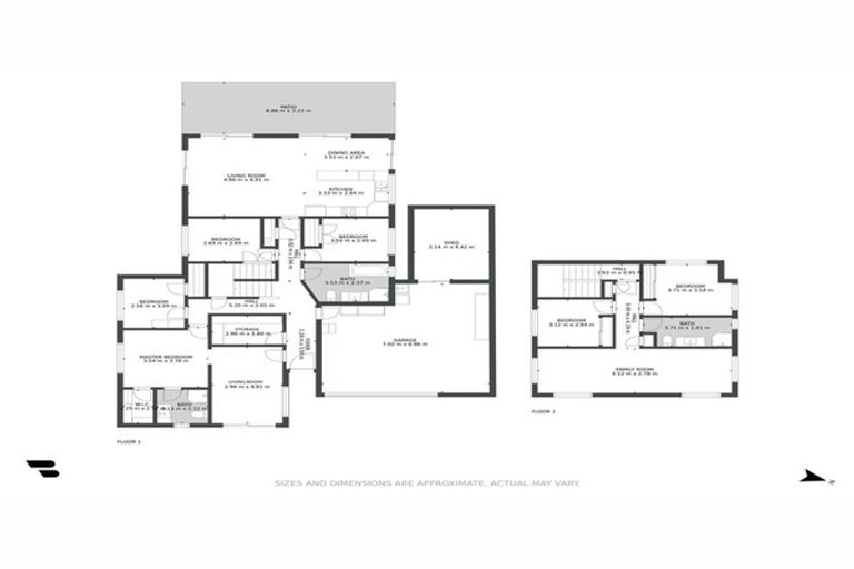
76 Maire Road, Orewa, 0931 is a Residential property built in 2013 with 4 bedrooms, 3 bathrooms and 2 parking spaces. The property is estimated to be valued in the range of $1,300,000 to $1,400,000.
The property last sold on 2 May 2022 for $1,400,000. It was sold by Telos Group. On 1 June 2021, 76 Maire Road, Orewa, 0931 had a Rating Valuation with a Capital Value of $1,400,000, Land Value of $680,000 and Improvement Value of $720,000.
| Date | Type | Price | Agent/Agency |
|---|---|---|---|
| 5 Jul 2022 | Rented | $920 | Greer Knight of Telos Group |
| 2 May 2022 | SOLD | $1,400,000 | Marcia Noda of Telos Group |
| 2 May 2022 | SOLD | $1,400,000 | |
| 4 Dec 2021 | ASKING PRICE | $1,550,000 | Melanie Mak of Telos Group |
| 4 Dec 2021 | ASKING PRICE | $1,550,000 | Melanie Mak of Telos Group |
| 2 Nov 2020 | SOLD | $1,150,000 | |
| 11 Feb 2015 | DEADLINE PRIVATE TREATY | $399,000 | Zhang Lily of Barfoot & Thompson Ltd Browns Bay |
| 23 Apr 2013 | SOLD | $385,000 | |
| 10 Dec 2012 | SOLD | $295,000 |
Lot 6 Deposited Plan 461319
There are no similar properties in the area that are listed for sale or recently sold.