
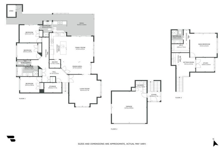
69 Maka Terrace, Orewa, 0931 is a Residential property built in 2018 with 4 bedrooms, 3 bathrooms and 2 parking spaces. The property is estimated to be valued in the range of $1,800,000 to $2,000,000.
The property last sold on 23 May 2023 for $2,030,000. It was sold by Bayleys Orewa (Mackys Real Estate Ltd), (Licensed: Reaa 2008), and took 34 days to sell. On 1 June 2021, 69 Maka Terrace, Orewa, 0931 had a Rating Valuation with a Capital Value of $1,830,000, Land Value of $740,000 and Improvement Value of $1,090,000.
| Date | Type | Price | Agent/Agency |
|---|---|---|---|
| 23 May 2023 | SOLD | $2,030,000 | |
| 20 Apr 2023 | BY NEGOTIATION | Price Not Disclosed | Marcia Noda of Bayleys Orewa (Mackys Real Estate Ltd), (Licensed: Reaa 2008) |
| 20 Aug 2019 | SOLD | $1,600,000 | |
| 17 Nov 2017 | SOLD | $510,000 |
Lot 136 Deposited Plan 505169
There are no similar properties in the area that are listed for sale or recently sold.