
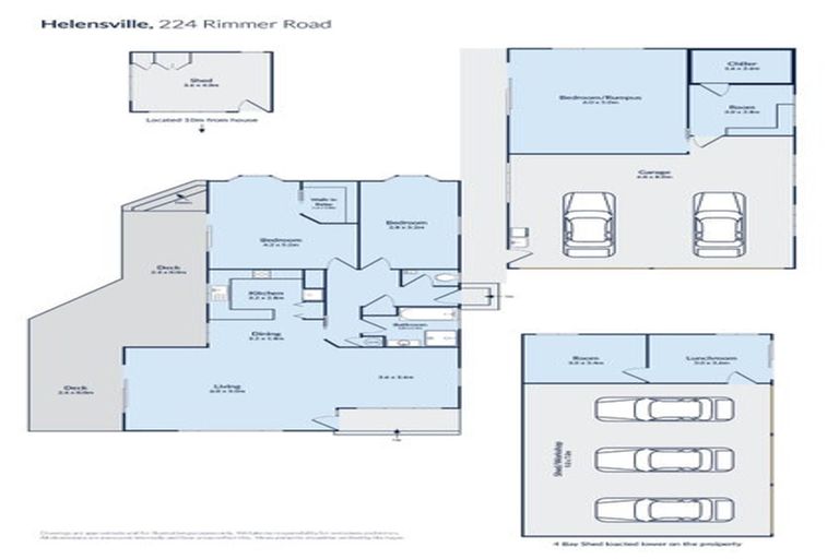
224 Rimmer Road, Helensville, 0875 is a Lifestyle property built in 1972 with 2 bedrooms, 1 bathroom and 2 parking spaces. The property is estimated to be valued in the range of $1,600,000 to $1,800,000.
The property last sold on 9 March 2016 for $1,645,000. It was sold by Harcourts Tandem Helensville, and took 89 days to sell. On 1 June 2021, 224 Rimmer Road, Helensville, 0875 had a Rating Valuation with a Capital Value of $1,710,000, Land Value of $1,275,000 and Improvement Value of $435,000.
| Date | Type | Price | Agent/Agency |
|---|---|---|---|
| 16 Apr 2024 | ENQUIRIES OVER | $1,950,000 | Graeme McLeod of Harcourts The Difference Ltd, (Licensed: Reaa 2008) |
| 9 Mar 2016 | SOLD | $1,645,000 | Robin Kerr of Harcourts Tandem Helensville |
| 12 Dec 2015 | ASKING PRICE | $1,700,000 | Robin Kerr of Harcourts Tandem Helensville |
| 25 Sep 2000 | SOLD | $487,000 | |
| 22 Sep 1994 | SOLD | $75,000 | |
| 2 Aug 1988 | SOLD | $165,000 | |
| 18 May 1987 | SOLD | $148,500 | |
| 1 Jan 1930 | SOLD | $0 |
Lot 2 Deposited Plan 165783
There are no similar properties in the area that are listed for sale or recently sold.