
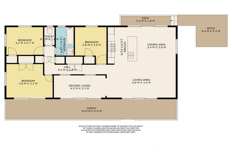
5 Empressa Heights, Helensville, 0800 is a Residential property built in 2000 with 3 bedrooms, 1 bathroom and 2 parking spaces. The property is estimated to be valued in the range of $800,000 to $900,000.
The property last sold on 29 October 2023 for $850,000. It was sold by Harcourts The Difference Ltd, (Licensed: Reaa 2008), and took 18 days to sell. On 1 June 2021, 5 Empressa Heights, Helensville, 0800 had a Rating Valuation with a Capital Value of $850,000, Land Value of $370,000 and Improvement Value of $480,000.
| Date | Type | Price | Agent/Agency |
|---|---|---|---|
| 29 Oct 2023 | SOLD | $850,000 | |
| 12 Oct 2023 | ASKING PRICE | $869,000 | Graeme McLeod of Harcourts The Difference Ltd, (Licensed: Reaa 2008) |
| 23 Jan 2004 | SOLD | $85,000 | |
| 31 Jul 2003 | SOLD | $65,000 | |
| 3 Mar 1999 | SOLD | $49,000 |
Lot 16 Deposited Plan 183277
There are no similar properties in the area that are listed for sale or recently sold.