
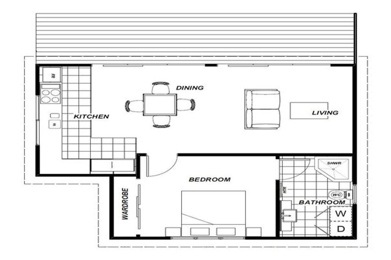
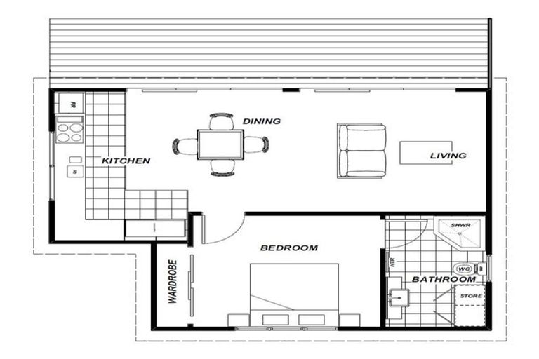
20b Waterview Road West, Takanini, 2112 is a Residential property built in 2006 with 3 bedrooms, 1 bathroom and 0 parking spaces. The property is estimated to be valued in the range of $750,000 to $800,000.
The property last sold on 20 June 2006 for $1,350,000. On 1 June 2021, 20b Waterview Road West, Takanini, 2112 had a Rating Valuation with a Capital Value of $860,000, Land Value of $385,000 and Improvement Value of $475,000.
| Date | Type | Price | Agent/Agency |
|---|---|---|---|
| 10 Mar 2025 | Rented | $690 | |
| 20 Jun 2006 | SOLD | $1,350,000 |
Lot 5 Deposited Plan 368784
There are no similar properties in the area that are listed for sale or recently sold.