
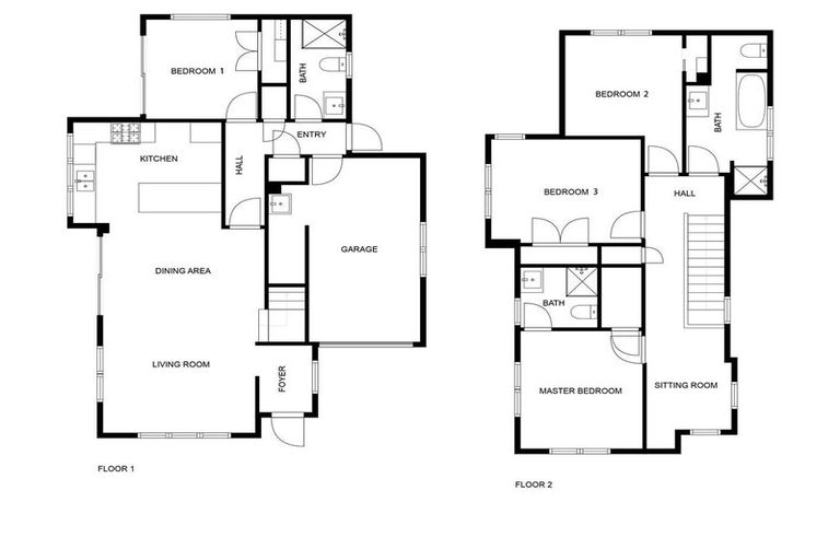
21 Sapwood Crescent, Takanini, 2110 is a Residential property built in 2018 with 4 bedrooms, 3 bathrooms and 0 parking spaces. The property is estimated to be valued in the range of $900,000 to $1,000,000.
The property last sold on 31 May 2023 for $1,048,000. It was sold by Harcourts - Golden Links Real Estate Limited, (Licensed: Reaa 2008), and took 104 days to sell. On 1 June 2021, 21 Sapwood Crescent, Takanini, 2110 had a Rating Valuation with a Capital Value of $990,000, Land Value of $495,000 and Improvement Value of $495,000.
| Date | Type | Price | Agent/Agency |
|---|---|---|---|
| 31 May 2023 | SOLD | $1,048,000 | |
| 17 Feb 2023 | ASKING PRICE | $1,120,000 | Tina Xu of Harcourts - Golden Links Real Estate Limited, (Licensed: Reaa 2008) |
Lot 24 Deposited Plan 515143
There are no similar properties in the area that are listed for sale or recently sold.