
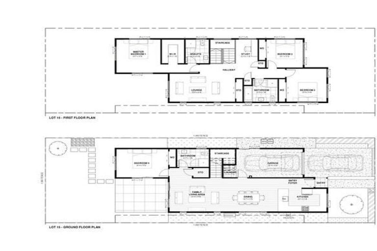
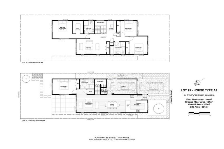
31 Exmoor Road, Karaka, Papakura, 2113 is a Residential property built in 2020 with 4 bedrooms, 3 bathrooms and 0 parking spaces. The property is estimated to be valued in the range of $1,100,000 to $1,200,000.
The property last sold on 23 April 2019 for $16,176,470. On 1 June 2021, 31 Exmoor Road, Karaka, Papakura, 2113 had a Rating Valuation with a Capital Value of $1,250,000, Land Value of $485,000 and Improvement Value of $765,000.
| Date | Type | Price | Agent/Agency |
|---|---|---|---|
| 22 Aug 2024 | Rented | $849 | |
| 23 Jul 2022 | Rented | $850 | Jasmin Sidhu of Harcourts Papatoetoe Rentals |
| 9 Nov 2021 | ENQUIRIES OVER | $1,319,000 | Sarah Payne of Fletcher Living Auckland South |
| 23 Apr 2019 | SOLD | $16,176,470 |
Lot 15 Deposited Plan 535864
There are no similar properties in the area that are listed for sale or recently sold.