
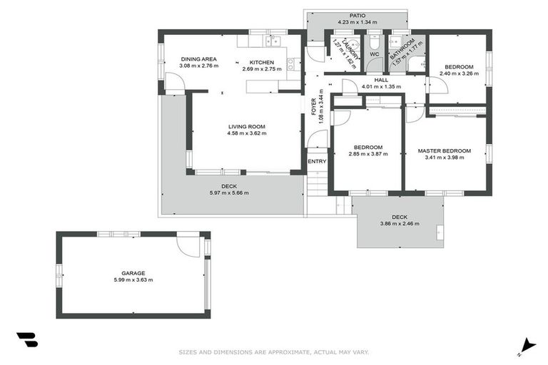
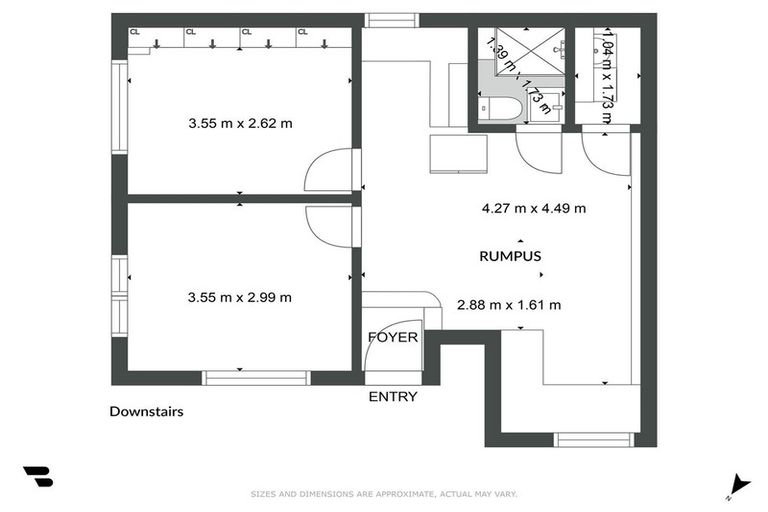
42 Tamahere Drive, Glenfield, Auckland, 0629 is a Residential property built in 1972 with 5 bedrooms, 1 bathroom and 1 parking space. The property is estimated to be valued in the range of $1,000,000 to $1,100,000.
The property last sold on 29 June 2022 for $1,047,000. It was sold by Harcourts Cooper & Co - Glenfield, and took 50 days to sell. On 1 June 2021, 42 Tamahere Drive, Glenfield, Auckland, 0629 had a Rating Valuation with a Capital Value of $1,150,000, Land Value of $1,100,000 and Improvement Value of $50,000.
| Date | Type | Price | Agent/Agency |
|---|---|---|---|
| 29 Aug 2024 | Rented | $650 | Bob Mo of Ezystayz Limited |
| 8 Jun 2023 | Rented | $990 | Daniel of Ezystayz Limited |
| 29 Jun 2022 | SOLD | $1,047,000 | |
| 11 May 2022 | ASKING PRICE | $1,095,000 | David Ding of Harcourts Cooper & Co - Glenfield |
| 19 Jan 2022 | Rented | $615 | |
| 1 Oct 2019 | Rented | $490 | |
| 30 Mar 2017 | SOLD | $660,000 | |
| 6 Mar 2017 | AUCTION | Price Not Disclosed | David Ding of Harcourts Cooper & Co - Browns Bay |
| 25 May 1999 | SOLD | $224,000 | |
| 19 Feb 1996 | SOLD | $203,000 | |
| 28 Mar 1990 | SOLD | $145,000 | |
| 27 Jul 1987 | SOLD | $123,000 | |
| 30 Sep 1986 | SOLD | $93,000 |
Lot 95 Deposited Plan 63918
There are no similar properties in the area that are listed for sale or recently sold.